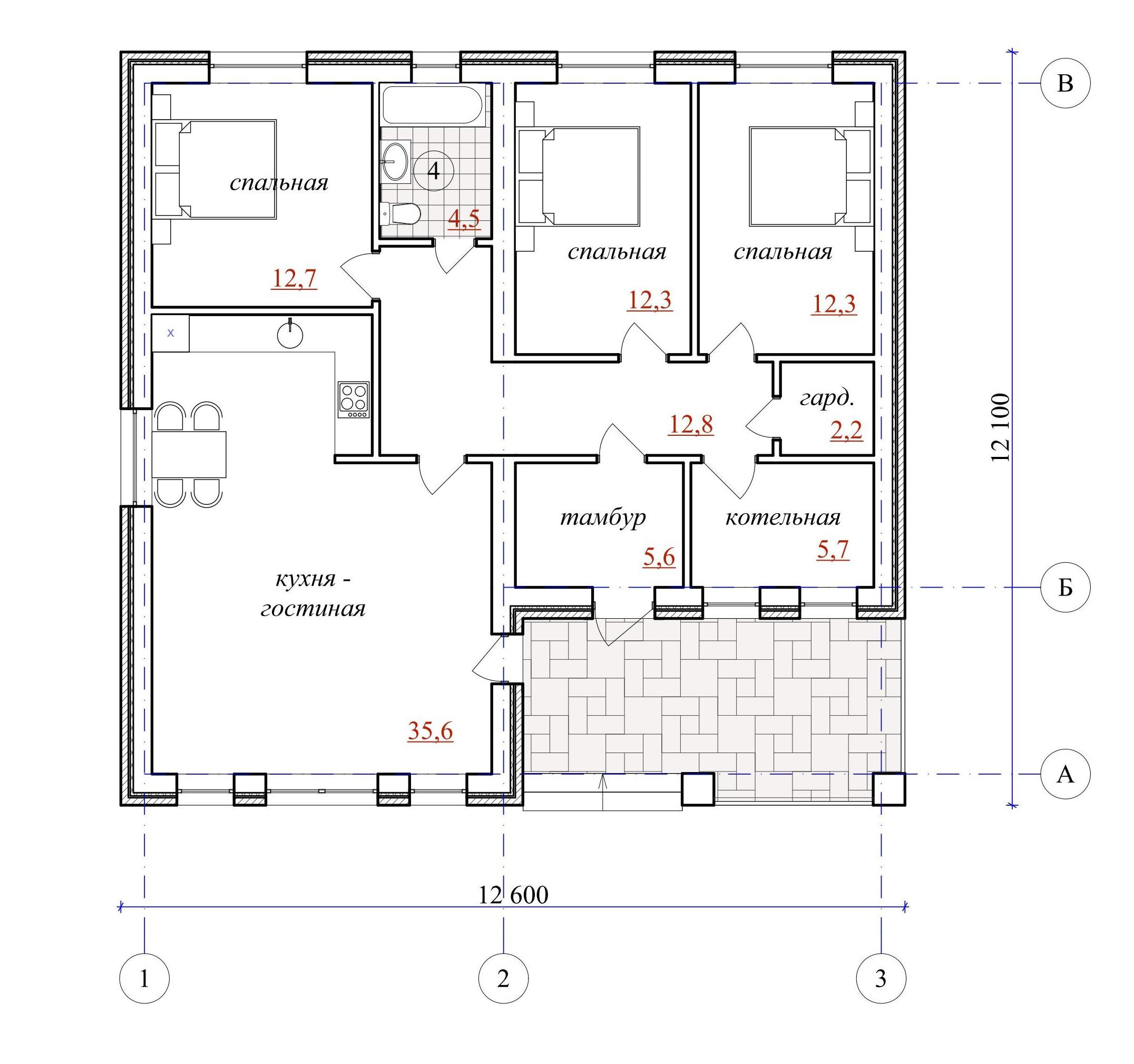
Типовой дом 104 кв. м. «КЛАССИК».
Одноэтажный дом с холодным чердаком, четырехскатной крышей.
Размеры — 12,1×12,6 м. Общая площадь — 104 м². Высота потолка — до 3 м.
- Фундамент: ленточный, бетон М300, ширина ленты 400 мм, заглублён 1600 мм или свайноростверковый на буронабивных сваях.
- Отмостка по периметру дома шириной не более 1 метра.
- Пол 1 этажа: армированная монолитная плита толщино 150 мм
- Материал наружных стен — газоселикатный блок, толщина стены 300 мм.
- Наружная отделка стен — облицовочный кирпич
- Перегородки — селикатный кирпич.
- Тип чердачного перекрытия — по деревянным балкам 150 мм, подшитая пароизоляцией и доской 25×120 мм.
- Утепление кровли — целлюлозная вата (эковата) 150 мм.
- Тип кровли — гибкая черепица.
- Водосточная система по периметру кровли диаметром 100 мм.
- Окна пластиковые, двухкамерное остекление, ламинированные под цвет кровли с наружной стороны.
Цена: 7 050 000 руб











