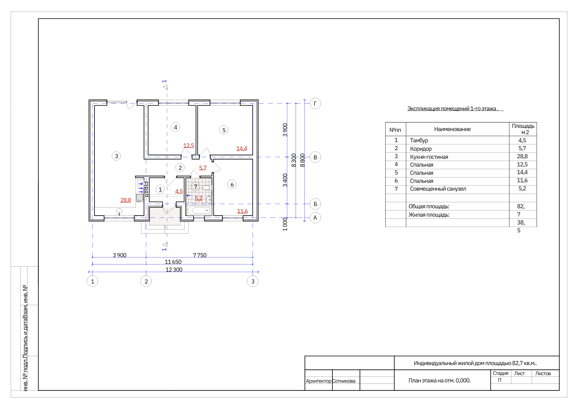
Типовой дом 83 кв. м. «КЛАССИК».
ТЕХНИКО — ЭКОНОМИЧЕСКИЕ ПОКАЗАТЕЛИ:
S ОБЩАЯ ДОМА = 83 м²
ФУНДАМЕНТЫ — ЛЕНТОЧНЫЕ БЕТОННЫЕ ГЛУБИНОЙ ЗАЛОЖЕНИЯ НЕ МЕНЕЕ 1,5 М НИЖЕ УРОВНЯ ЗЕМЛИ С ГОРИЗОНТАЛЬНОЙ И ВЕРТИКАЛЬНОЙ ГИДРОИЗОЛЯЦИЕЙ;
ЦОКОЛЬ — ПОЛНОТЕЛЫЙ КРАСНЫЙ КЕРАМИЧЕСКИЙ КИРПИЧ
СТЕНЫ — 400 ММ; БЛОК КЕРАМЗИТОБЕТОННЫЙ ИЛИ ГАЗОСИЛИКАТНЫЙ ГРАС — 300 мм, УТЕПЛИТЕЛЬ -100 Мм.
ДЕКОРАТИВНЫЕ ЭЛЕМЕНТЫ — РЕЙКА ДЕКОРАТИВНАЯ. ВЕНТКАНАЛ ВЫПОЛНИТЬ ИЗ КРАСНОГО КЕРАМИЧЕСКОГО ПОЛНОТЕЛОГО КИРПИЧА ПОЛЫ — ПО ГРУНТУ
ПЕРЕКРЫТИЯ — ДЕРЕВЯННЫЕ ПО ДЕРЕВЯННЫМ БАЛКАМ.
КРОВЛЯ — МЕТАЛЛОЧЕРЕПИЦА ПО ДЕРЕВЯННОМУ НАКАТУ И СТРОПИЛАМ.
ОКОННЫЕ БЛОКИ — ПВХ ПРОФИЛЬ, ДВОЙНОЙ СТЕКЛОПАКЕТ. К
Цена: 4 900 000 руб









